195.ro Agentia imobiliara Sector 1 Bucuresti utilizează fişiere de tip cookie pentru a personaliza și îmbunătăți experiența ta pe Website-ul nostru. Înainte de a continua navigarea pe Website-ul nostru te rugăm să aloci timpul necesar pentru a citi și înțelege conținutul Politicii de Cookie. Prin continuarea navigării pe Website-ul nostru confirmi acceptarea utilizării fişierelor de tip cookie conform Politicii de Cookie.
Acest anunt nu mai este activ !

Unirii Palatul Parlamentului Mitropolie - Apartament gata de mutat !
Comision 0%

Pret: 270.000€

Localizare: Bucuresti

ID Oferta: NT11211 Numar de afisari: 237

Alongside Unirii Fountains !

Alongside Unirii Fountains îţi oferă mixul ideal de locuire: este înconjurat de foarte multe spaţii verzi, cladiri vechi construite în perioada interbelică, dar şi de frumusetea oferita de fantanile construite in anii "80 pe Bulevardul Unirii si modernizate recent-recunoscute si omologate de World Record Academy drept "Cel mai lung sir de fantani coregrafice sincronizate din lume".

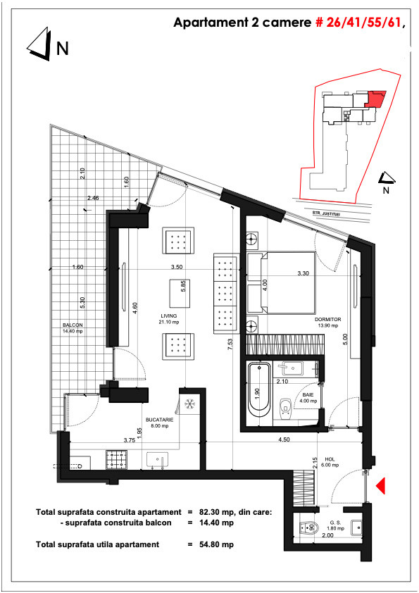
Va prezentam spre achizitie un apartament avand 2 camere, situat la etajul 1 din 4. Apartamentul are suprafata utila de 54 mp, plus terasa in suprafata de 13 mp, cu suprafata construita de 67 mp, 2 bai, este decomandat.  Apartamentul este finisate cu usi, parchet, gresie, faianta, obiecte sanitare complete, centrala termica, incalzire prin pardoseala, finisaje de calitate superioara. Actele sunt pregatite de vanzare, apartamentul este gata de livrat. Blocul este locuit.
DETALII TEHNICE: STRUCTURA CLADIRII: beton, pereti exteriori caramida 36cm, compartimentari interioare: pereti caramida 15cm, fatada ventilata placari cu fibrociment si TERMOSISTEM exterior polistiren 15cm si tencuiala structurata CAPAROL, UTILITATI GENERALE: curent electric, apa, canalizare, gaz, fibra optica, INCALZIRE centrala proprie, incalzire pardoseala, FINISAJE pereti interiori: vopsea lavabila, PARDOSELI parchet, gresie, USA INTRARE: metal PINUM antiefractie cu inchideri multiple in 3 planuri si balamale ascunse, USI INTERIOR: celulare PINUM, BUCATARIE: nemobilata, neutilata cu placi ceramice 60cmx120cm in zona frontului de lucru, CONTORIZARI: apometre, contor gaz, contor curent electric. Instalatia electrica din cupru, cu circuite separate pentru consumatorii principali: centrala termica, instalatii bai, cuptor electric, masina spalat, AC, prize camere, iluminat camere. SPATII COMUNE: Finisaje pavaje spatii comune si balcoane: granit; Lift; Supraveghere video perimetrala; Acces securizat 24/7; Acces proprietari pe baza de card/telecomanda in parcare; Iluminat cu lampi LED si senzori de miscare in spatiile interioare comune.

Prin partenerii nostri va recomandam: - facilitati de creditare, fara costuri suplimentare; - servicii de design interior, achizitie mobilier sau electrocasnice la preturi speciale doar pentru clientii nostri. Nu pierdeti nimic daca ne contactati si veniti la noi in vizita !

PS: Agentii imobiliari sunt invitati la colaborare si vor fi remunerati !  Colaborarea inseamna SUCCESS ! 

* Pentru fiecare apartament, este disponibil 1 loc de parcare la subsol, dar NU este inclus in pretul afisat !


Situat în zona Unirii, una dintre cele mai frumoase şi prestigioase zone ale Bucureştiului, Alongside Unirii Fountains, reprezinta noul Acasa pentru tine! Aici ai posibilitatea de a îmbina două stiluri de viaţă diferite, trecând oricând de la relaxarea si linistea din cadrul ansamblului şi a zonei, la dinamica vieţii sociale imbinata cu istoria si agitatia Centrului Vechi. În maximum 10 minute de mers pe jos ai acces atat la staţia de metrou Unirii cat si la alte mijloace de transport in comun precum si numeroase centre comerciale.
Din Alongside Unirii Fountains poţi ajunge la diverse Institutii Publice dar si la Casa Poporului, Centru Vechi, Mitropolie, Manastirea Antim, la Universitate si Piateta Universitatii, in Parcul Cismigiu, la Teatrul National si Teatrul de Opereta Constantin Tanase. De asemenea sunt relativ aproape Piata Romana (Academia de Studii Economice), birourile, restaurantele şi muzeele din Victoriei, cafenelele şi restaurantele selecte din Kiseleff-Aviatorilor, la Arcul de Triumf sau în Parcul Herăstrău, cel mai mare parc din Bucureşti.
Toate punctele de interes sunt chiar lângă tine, astfel că poţi avea mai mult timp pentru activităţile care-ţi fac plăcere şi mai mult timp pentru familia ta!
Suna azi si programeaza o vizita la biroul nostru de vanzari !
Alongside Unirii Fountains este aproape de tot ce este important pentru tine !

  • Nr. camere: 2
  • S. utila: 54.00 mp
  • S. balcoane: 13.00 mp
  • S. utila totala: 67.00 mp
  • S. construita: 67.00 mp
  • Comp.: Decomandat
  • Confort: Lux
  • Etaj: Etaj 1
  • Nr. bucatarii: 1
  • Nr. bai: 2
  • Nr. balcoane: 1
  • Nr. parcari: 1
  • Nr. garaje: 1
  • An constructie: 2023
  • Structura: Beton
  • Tip imobil: Bloc
  • Regim inaltime: P+4
  • Orientare: Sud-Vest
  • Clasa energetica: A
+40751959595
Utilitati
  • Utilitati generale: Curent, Apa, Canalizare, Gaz, CATV, Fibra optica
  • Sistem incalzire: Centrala proprie, Incalzire pardoseala
  • Climatizare: Aer conditionat
Finisaje
  • Izolatii: Exterior
  • Pereti: Vopsea lavabila
  • Podele: Parchet, Gresie
  • Ferestre: PVC
  • Usa intrare: Metal
  • Usa interior: Celulare
Dotari
  • Spatii utile: Dressing
  • Bucatarie: Nemobilata, Neutilata
  • Contorizare: Apometre, Contor gaz
  • Mobilat: Nemobilat
  • Imobil: Videointerfon, Lift
Apeleaza Chat