195.ro Agentia imobiliara Sector 1 Bucuresti utilizează fişiere de tip cookie pentru a personaliza și îmbunătăți experiența ta pe Website-ul nostru. Înainte de a continua navigarea pe Website-ul nostru te rugăm să aloci timpul necesar pentru a citi și înțelege conținutul Politicii de Cookie. Prin continuarea navigării pe Website-ul nostru confirmi acceptarea utilizării fişierelor de tip cookie conform Politicii de Cookie.

Casa demolabila/renovabila langa Lacul Grivita
Comision 0%

Pret: 249.000€

Localizare: Bucuresti, Bucurestii Noi

ID Oferta: BN11698 Numar de afisari: 2

Ofertă imobiliară rară !  
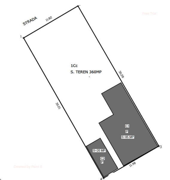
Va supunem atentiei o proprietate compusa dintr-un teren de 360mp si o constructie amplasata foarte avantajos pe teren. Imobilul este situat in zona Bisericii Bazilescu, foarte aproape de Lacul Grivita. Un alt beneficiu major sunt vecinatatile, fomate dintr-un tesut de case, majoritatea noi sau renovate, fara blocuri in vecinatate. Strada este asfaltata, sunt disponibile toate utilitatile. Actele de proprietate sunt pregatite pentru tranzactionare.
In proximitate avem: Metrou Bazilescu, Parc Bazilescu, Lidl, Mega Image, Lacul Grivita, CrisTim, Kaufland, Penny.


Asadar nu pierde aceasta ocazie, suna azi si hai la vizionare. 

  • S. teren: 360.00 mp
  • Front stradal: 12.00 m
  • Nr. fronturi: 1
  • Clasificare teren: Intravilan
  • Regim inaltime: S+D+P+2+M

Bocaneala Nistor

Broker Owner

Bocaneala Nistor

0751959595
Utilitati
  • Utilitati generale: Curent, Apa, Canalizare, Gaz, Acces internet, Fibra optica, Utilitati in zona
Dotari
  • Imobil: Gradina
Apeleaza Chat