195.ro Agentia imobiliara Sector 1 Bucuresti utilizează fişiere de tip cookie pentru a personaliza și îmbunătăți experiența ta pe Website-ul nostru. Înainte de a continua navigarea pe Website-ul nostru te rugăm să aloci timpul necesar pentru a citi și înțelege conținutul Politicii de Cookie. Prin continuarea navigării pe Website-ul nostru confirmi acceptarea utilizării fişierelor de tip cookie conform Politicii de Cookie.

Casa demolabila/renovabila langa Lacul Grivita
Comision 0%

Pret: 269.000€

Localizare: Bucuresti, Bucurestii Noi

ID Oferta: BN11535 Numar de afisari: 11

Ofertă imobiliară rară !  
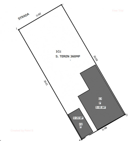
Va supunem atentiei o proprietate compusa dintr-un teren de 360mp si o constructie amplasata foarte avantajos pe teren. Imobilul este situat in zona Bisericii Bazilescu, foarte aproape de Lacul Grivita. Un alt beneficiu major sunt vecinatatile, fomate dintr-un tesut de case, majoritatea noi sau renovate, fara blocuri in vecinatate. Strada este asfaltata, sunt disponibile toate utilitatile. Actele de proprietate sunt pregatite pentru tranzactionare. Asadar nu pierde aceasta ocazie, suna azi si hai la vizionare. 

  • S. teren: 360.00 mp
  • Front stradal: 12.00 m
  • Nr. fronturi: 1
  • Clasificare teren: Intravilan
  • Regim inaltime: S+D+P+2+M

Bocaneala Nistor

Broker Owner

Bocaneala Nistor

0751959595
Utilitati
  • Utilitati generale: Curent, Apa, Canalizare, Gaz, Acces internet, Fibra optica
Apeleaza Chat